立即预约 立即预约
免费定制整装家居

免费定制整装家居

一站置家 全程无忧 一省到底
hide.png

当前位置: 首页 > 装修案例效果图 > 格林英郡|奶油风格

格林英郡|奶油风格 90平 其他风格效果图

收藏
案例风格 其他 案例户型 三居 案例面积 90平米
楼盘名称 格林英郡 设计师 赵春阳 案例类型 改善性住宅

设计理念:客户是两口人,搭配暖色调的颜色搭配,布局大方,简单温馨,配合整体的当下流行的奶油风,使空间更加大气美观温馨

客厅
第1张
第2张
卧室
第1张
第2张
卫生间
第1张
厨房
第1张
衣帽间
第1张
门厅
第1张
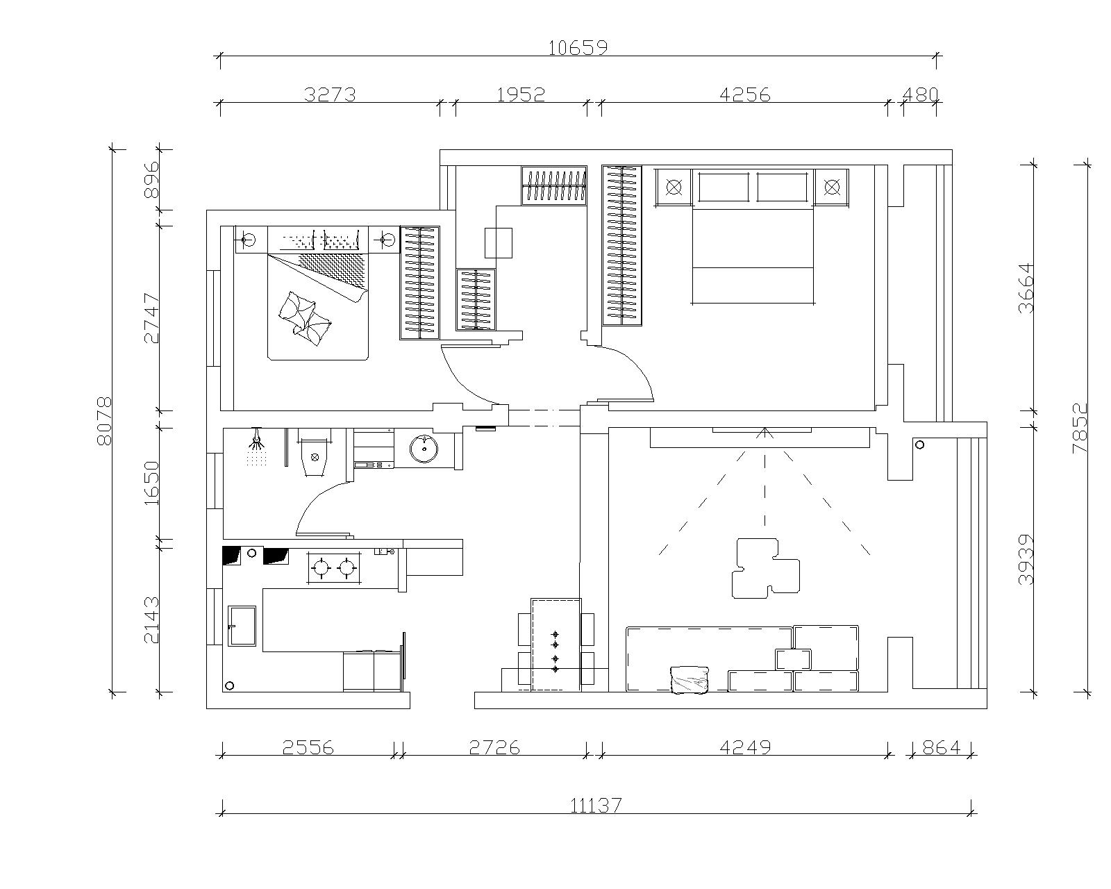
户型图
第1张
格林英郡-90平-奶油风-客厅首页.jpg 格林英郡-90平-奶油风-客厅.jpg

客厅整面墙做了电视背景墙,尤为重要的是增加了入户玄关屏风和柜子的穿插组合,使得空间在美观的基础上还增加了视野的通透性

格林英郡-90平-奶油风-客卧.jpg 格林英郡-90平-奶油风-主卧.jpg

增加衣物储存量,并且能规划出单独的换衣区,既是整体,又有分区,合理规化主卧空间

格林英郡-90平-奶油风-卫生间.jpg

暖色干净的瓷砖配色,增加独立淋浴区,并且做了干湿分离

格林英郡-90平-奶油风-厨房.jpg

厨房整体做拉门,两侧延伸做橱柜,储存空间大,台面空间丰富

格林英郡-90平-奶油风-衣帽间.jpg

两口子东西非常的多,增加了衣帽间和电竞桌的空间

格林英郡-90平-奶油风-玄关.jpg 户型图.jpg

案例设计师

赵春阳

设计师:赵春阳

从业时间:8年

设计理念:设计没有风格,设计是对生活的一种诠释。

预约设计师

算算你家装修多少钱

报名即享丰厚赠品,享半价装修

免费报价
咨询热线:400-656-9909
20190221103704574636.jpg

精品设计案例

20180612134930523248.jpg 服务号二维码.jpg