立即预约 立即预约
免费定制整装家居

免费定制整装家居

一站置家 全程无忧 一省到底
hide.png

当前位置: 首页 > 装修案例效果图 > 新希望锦麟河院|意式轻奢

新希望锦麟河院|意式轻奢 280平 轻奢风格效果图

收藏
案例风格 轻奢 案例户型 别墅 案例面积 280平米
楼盘名称 新希望锦麟河院 设计师 张景新 案例类型 改善性住宅

设计理念:在传统意义上,意式轻奢将奢华做到了一定的消减,起到了设计风格的回归,还能给人时尚,优雅的感觉。从细节方面进行设计,展示品质生活态度。

客厅
第1张
餐厅
第1张
卧室
第1张
第2张
第3张
卫生间
第1张
第2张
休闲区
第1张
第2张
衣帽间
第1张
门厅
第1张
户型图
第1张
第2张
第3张
张景新设计-新希望锦麟河院-280平-意式-一楼客餐厅.jpg

开放式的设计让厨房和餐厅之间没有了隔阂,我们可以一边做饭一边和家人聊天,感觉更加亲密和温馨。而且,这样的设计也让空间显得更加宽敞明亮,给人一种开阔的感觉。

张景新设计-新希望锦麟河院-280平-意式-一楼客餐厅(2).jpg 张景新设计-新希望锦麟河院-280平-意式-二楼主卧.jpg 张景新设计-新希望锦麟河院-280平-意式-一楼次卧.jpg 张景新设计-新希望锦麟河院-280平-意式-一楼主卧.jpg

主卧室的吊顶通常采用无主灯设计,无边框的射灯和是意式轻奢的标配。色彩、材质和家具的搭配,加以精心的布局和细节装饰,营造出一个即奢华又舒适的居住空间,充分考虑了居住者的需求和感受,将实用性与美观性完美结合。营造出宁静而高雅的氛围。

张景新设计-新希望锦麟河院-280平-意式-二楼卫生间(2).jpg 张景新设计-新希望锦麟河院-280平-意式-一楼卫生间.jpg

意式卫生间的设计,简约而不失精致。采用大面积的灰色瓷砖,搭配金属质感的水龙头和配件,简洁的线条勾勒出优雅的空间感。每一个细节都透露出对品质的追求。

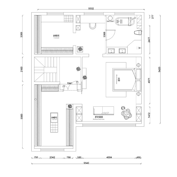
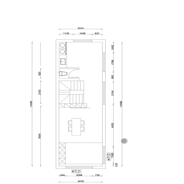
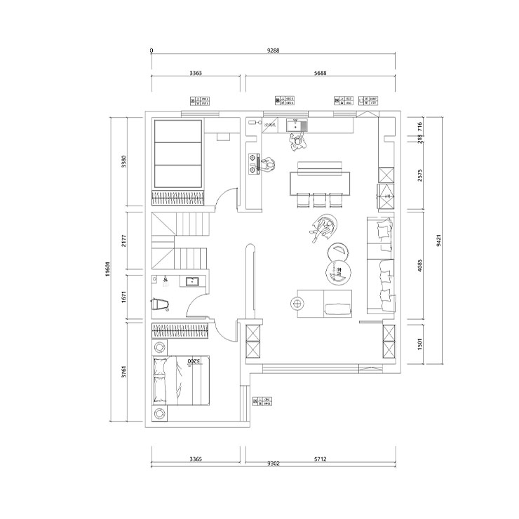
张景新设计-新希望锦麟河院-280平-意式-二楼多功能区.jpg 张景新设计-新希望锦麟河院-280平-意式-二楼梳妆台.jpg 张景新设计-新希望锦麟河院-280平-意式-二楼衣帽间.jpg 张景新设计-新希望锦麟河院-280平-意式-二楼过道(2).jpg 户型图1楼.jpg 户型图2楼.jpg 户型图3楼.jpg

案例设计师

张景新

设计师:张景新

从业时间:6年

设计理念:合理的划分空间,让设计融入生活,营造自然,品味,格调

预约设计师

算算你家装修多少钱

报名即享丰厚赠品,享半价装修

免费报价
咨询热线:400-656-9909
20190221103704574636.jpg

精品设计案例

20180612134930523248.jpg 服务号二维码.jpg