立即预约 立即预约
免费定制整装家居

免费定制整装家居

一站置家 全程无忧 一省到底
hide.png

当前位置: 首页 > 装修案例效果图 > 龙湖舜山府|现代轻奢

龙湖舜山府|现代轻奢 240平 轻奢风格效果图

收藏
案例风格 轻奢 案例户型 四居 案例面积 240平米
楼盘名称 龙湖舜山府 设计师 刘源源 案例类型 改善性住宅

设计理念:意式风格通常都是以高质量和精细工艺体现奢华感,经典的皮艺沙发,无主灯的设计搭配,精雕细琢的大理石质地和木质家具都是常见元素讲究功能性与美观性的统一,是本案的中心

客厅
第1张
第2张
第3张
餐厅
第1张
卧室
第1张
第2张
第3张
第4张
卫生间
第1张
第2张
厨房
第1张
书房
第1张
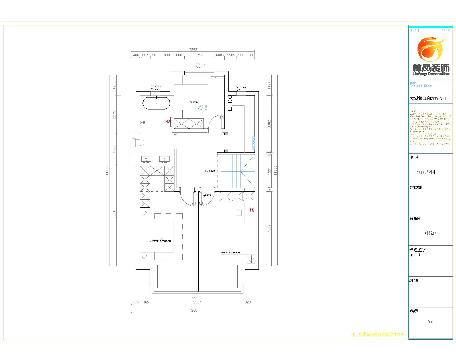
户型图
第1张
33.jpg 106.jpg 107.jpg

常见的宽厅设计,主要体现宽阔舒适,和大的视野感

11.jpg 66.jpg 77.jpg 88.jpg 99.jpg

楼上原本都是挑控部分,犹豫房主人口多所以都封闭设计了套房设计

44.jpg 55.jpg

简单舒适,三分离设计

104.jpg

采用敞开式厨房,与进门玄关设计的完美结合是点睛之笔

100.jpg 龙湖舜山府上叠二楼平面图.jpg

案例设计师

刘源源

设计师:刘源源

从业时间:13年

设计理念:空间合理化并给人们以美的感受是设计的基本任务,我们要勇于探索时代技术赋予空间的新形象,不要拘泥于过去形成的空间形象。

预约设计师

算算你家装修多少钱

报名即享丰厚赠品,享半价装修

免费报价
咨询热线:400-656-9909
20190221103704574636.jpg

精品设计案例

20180612134930523248.jpg 服务号二维码.jpg