立即预约 立即预约
免费定制整装家居

免费定制整装家居

一站置家 全程无忧 一省到底
hide.png

当前位置: 首页 > 装修案例效果图 > 江南时代

江南时代 82平 现代简约风格效果图

收藏
案例风格 现代简约 案例户型 二居 案例面积 82平米
楼盘名称 江南时代 设计师 林凤装饰设计师 案例类型 改善性住宅

设计理念:江南时代82平2居室空间小的问题做出大的格局,颜色简单单一使空间更大。

客厅
第1张
第2张
第3张
第4张
第5张
餐厅
第1张
卧室
第1张
卫生间
第1张
儿童房
第1张
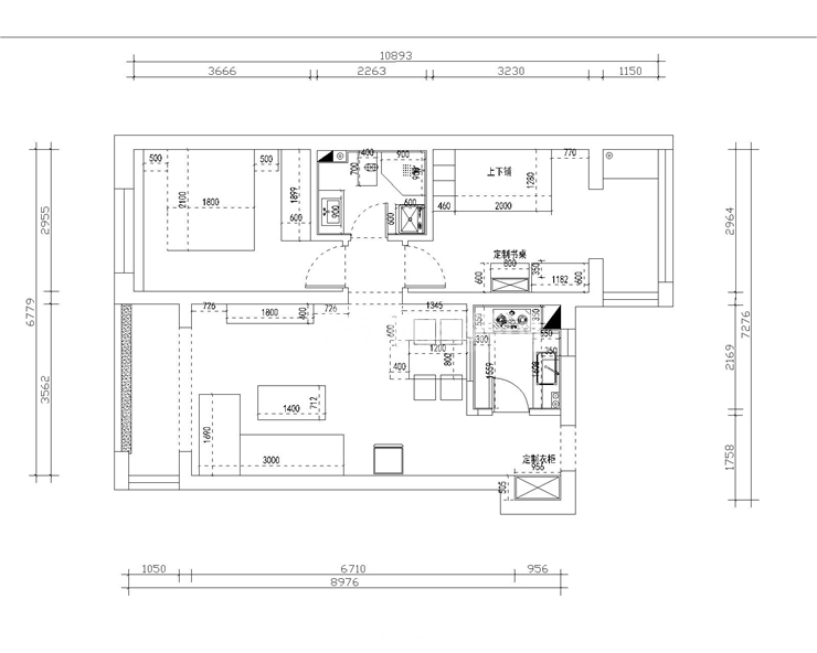
户型图
第1张
  • 案例详情

江南时代-82平-现代风格-客厅.jpg 江南时代-82平-现代风格-首图.jpg 江南时代-82平-现代风格-电视背景墙.jpg 江南时代-82平-现代风格-沙发背景墙.jpg 江南时代-82平-现代风格-整体.jpg

客厅没有过多的棚顶设计用石膏板叠级石膏线处理,电视背景墙采用硅藻泥砖墙处理,选用灰色沙发和背景墙的颜色整体有个呼应,在空间上的处理把冰箱摆放在沙发一侧选用的颜色白色,客厅的颜色已黑白灰为主。

江南时代-82平-现代风格-餐厅.jpg

餐厅的设计用原木色餐桌,餐厅与厨房的情面用玻璃隔断出过度,主要是餐厅和厨房的互动关系,这样空间采光问题也大大增加很多。

江南时代-82平-现代风格-主卧.jpg

灰色乳胶漆和原木色的床,更加体现出北欧的元素在里面,床头的悬垂灯更加贴近人性设计会使人更方便。

江南时代-82平-现代风格-卫生间.jpg

卫生间没有窗户选材上做了很多心思,墙砖灰色的,洗漱柜白色这样会有鲜明的对比,对颜色的把控和客厅是一样的,黑白灰的设计贯穿在整个空间。

江南时代-82平-现代风格-儿童房.jpg

浅蓝色的墙面和叠级的石膏板凸显举架的层次感,此空间选的家具上下铺,也是业主想要的给孩子一个上下层的玩耍空间。

江南时代-82平-现代风格-平面图.jpg

案例设计师

林凤装饰设计师

设计师:林凤装饰设计师

从业时间:10年

设计理念:感受生活品质,设计空间生活。

预约设计师

算算你家装修多少钱

报名即享丰厚赠品,享半价装修

免费报价
咨询热线:400-656-9909
20190221103704574636.jpg

精品设计案例

20180612134930523248.jpg 服务号二维码.jpg